Ohoperealestate

powered by Open2view.com

87 Riverside Drive

Bay of Plenty
3
2
N/A
N/Asqm
1239sqm
87 Riverside Drive Bay of Plenty
Openhome
Sunday
12.45pm - 1.30pm
proudly marketed by
ETB Realty Ltd MREINZ
Exceptional Entertainer!
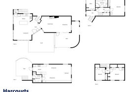
Set on 1,239m2 section, this elegant 1950's split level family home is brimming with beautiful polished timber floors, balustrades, intricate plaster detailing and 5 sparkling chandeliers. Brilliant for those who love open plan living, formal or casual with ability to separate if required. Both areas flow into large outdoor living/entertaining areas which are super-sized and fabulously designed. Lounge inside or out, there is plenty of space whether you require quiet time, or be in the hub of it all. The kitchen features a Belling 90cm oven/stove in bright red - a great statement and I believe cooks everything perfectly! The island bench allows family and friends to congregate to watch the chef at work. Pass the salads...the kitchen and easily accessible to the north facing patios or out to the back garden. The homegrown herbs and vegetables are only a stroll away in a screened garden. Upstairs from the living area, gorgeous timber stairs lead to the level including the office (or small nursery), large family bathroom and large bedroom with hand basin. The modern tiled bathroom has lovely underfloor heating, spa bath, separate shower, heated towel rail and extractor fan. On the next level are two bedrooms, a double and a single - with elevated north facing views. Large ceiling storage is accessed here - a great space for the Christmas decorations when not in use! Below the main 3 bedroom/1 office home you will find a self contained studio, certainly a superb option for extra family and guests, or maybe work from home? A kitchenette and bathroom are included here, it's a super extra for sure! Behind the electric gates of 87 Riverside Drive, Whakatane, you will find an elegant home, of the era where timber was worked by craftsman and attention to detail was celebrated. Fully fenced, and beautifully landscaped with an additional gate out to the riverbank - where walking the dog and enjoying your 'steps for the day' is just literally 'out the gate'! Be sure to view, this property is priced to take care of the guess work. An extensive chattel list is available. Call Anna (0274460660) to secure a private viewing or attend the advertised open home. Our lovely Vendors are heading out of town sadly, so take this opportunity to secure an extraordinary property, that provides space both indoors and outdoors for all the family.
Question
Location
Upload by Pip Brabant
Whakatane and surrounds